DE
FR
Rechercher
Produits
Échelles
Escaliers
Rampes
Échafaudages
Caisses à outils
Accessoires
Fabrications sur mesure
Partenaires de distribution
À propos
Contact
Équipe
Entreprise
Formation
Documents
Nouvelles
retour
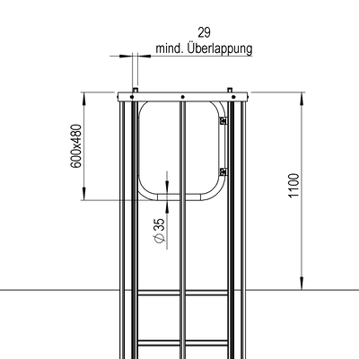
Porte à fermeture automatique pour sortie frontale d'une échelle à crinoline
Fiche technique
N° d'article
Prix hors TVA
Prix TVA inclue
910041
387.95
419.35
HB Suche